- Top
- Inspiration
- Detail

世代を超える家をつくること Rinnai Aoyama イベントレポート
2025年9月18日にRinnai Aoyamaで開催されたトークイベント「家を考える vol.2」。登壇いただいたのはRinnai Journalで紹介した「北嶺町の家」に住む建築家の室伏次郎さん、暢人(まさと)さん。お二人から、この家が生まれた経緯、時代ごとの変遷、育まれる家族の関係を伺いました。
ゲストスピーカー:室伏次郎、室伏暢人
モデレーター:猪飼尚司
- Product
- 食器洗い乾燥機
- Architect / Designer
- スタジオ アルテック
建築ファンのなかでは話題にあがることの多い東京都大田区の「北嶺町の家」。Rinnai Journalをはじめ、これまでにさまざまなメディアでも紹介されてきた住宅ですが、実際にこの家を建て、半世紀以上暮らし続ける建築家の室伏次郎さんの生の声を聞こうと、Rinnai Aoyamaには多くの人々が集まりました。

若き建築家が手に入れた22坪の土地。
聴衆の前に立ち、いささか緊張の面持ちの室伏次郎さんと暢人さん。まずは家を建てる前の室伏さん一家の暮らしの様子ぶり。そして、当時はまだ野原が広がっていたというエリアに自邸を建てようと思ったのか。そのいきさつを聞いてみました。
「北嶺町に引っ越してくる前の僕らは、まだ三男が生まれる前で、妻と息子2人の四人で、すぐ隣町の久ヶ原の木造アパートに住んでいました。いわゆる賃貸集合住宅ですから家のなかを改変できず、壁も汚してはいけない。子どもたちが走り回ると階下の人に迷惑がかかると、いつも静かにしろ、じっとしていろと諭していました。家族に無理をさせているなと心苦しく思いつつ、いつかは彼らがもっと自由に振る舞える場所をつくりたいとぼんやり考えていました」
そんな折に、親戚の友人から一帯の土地を所有していた人が、近所にとても小さい売地を出すという情報を入手。いまでこそ狭小の土地に小さな住宅を建てることは普通の感覚ですが、当時はこれほどの細かく分割した敷地が売られことは珍しいことで、若く資金も潤沢に持っていなかった室伏さんは、この話に飛びつきます。
そうして手に入れたのが、22坪の小さな土地。敷地面積としては広大ではありませんが、その時代の建築法の下での設計だったため、意外にも十分な床面積を確保することができたといいます。
「現在は、容積率によって敷地面積から延床面積の上限が決まりますが、設計をはじめた1969年当時はその制定がなく、床を何枚でも作ってよかったんです。だからこそ、この小さな敷地でも地上4階、延床面積177㎡という一家族が暮らすには十分なスペースが確保できたのです」



異なる居住スタイルを生んだ、4つの時代。
通常なら一度完成した家はよほど問題がなければ改築しないものですが、室伏さんは家族の成長と暮らしの変化にあわせるように、空間の余白を活かしながら巧みにアレンジ。竣工した1971年から現在までのあいだに、大きく4段階のリノベーションを行なってきました。

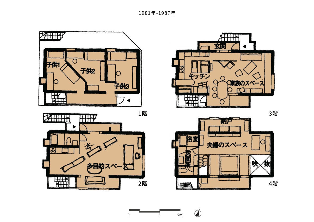
第一期(1971〜1981年)は、室伏さんの家族と叔父一家が同居することから始まります。
「1、2階に叔父たちが暮らし、3、4階が私たちの住まいに。ちょうど三男はこのあいだに誕生しました。10年を経て、叔父が田舎に引っ越すことになり、全4フロアを私たち家族が使うことになったのです」

第二期(1981〜1987年)は、空いた1階を3分割し、子ども3人分の個室を用意。2階はフレキシブルなレイアウトを楽しむ多目的スペースになりました。
「子ども部屋には扉を敢えて扉をつけず、半開放の状態にしていますが、壁のかたちを工夫することで、部屋の奥に入るとそれぞれのプライバシーが確保できるようにしています。また、上下階の行き来がしやすいように、同時期に南西の角に1階〜4階までを貫く屋外階段を設置しました」


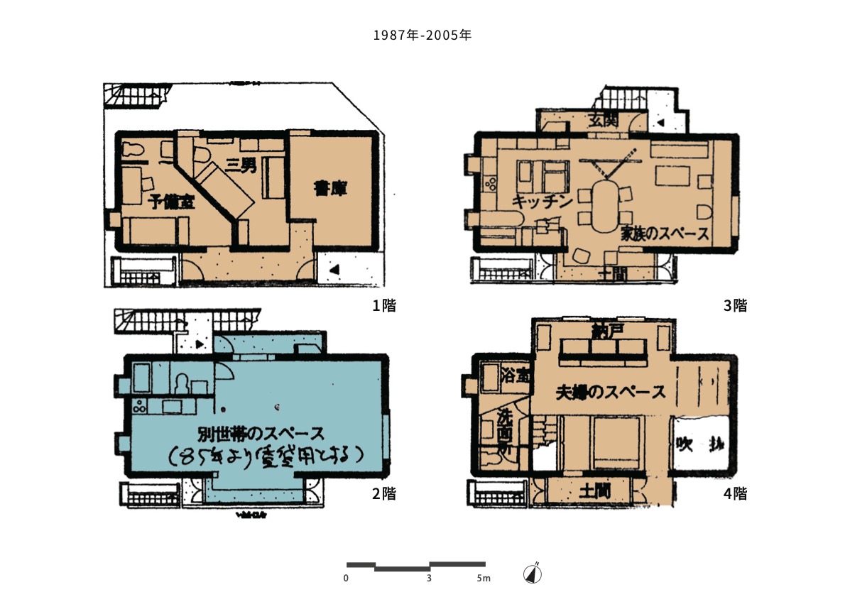
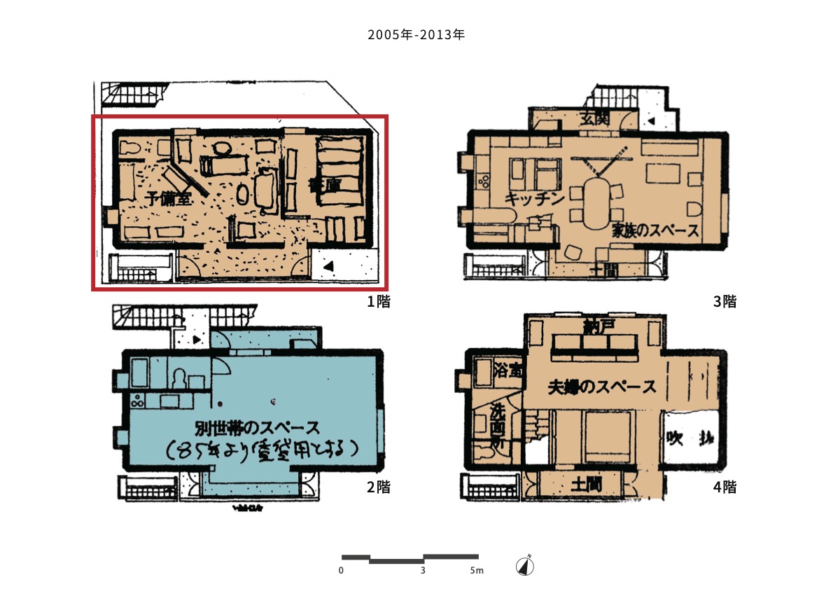
第三期(1987〜2013年)には、長男と次男が独立したことを受け、1階に書庫と予備室に変更。さらに、2階を完全に独立させ賃貸住宅として貸し出し、2005〜2013年にかけては、三男が独立したため。1階の予備室を拡張しています。
「初めて家族以外の人が同じ家で暮らすことになったのですが、当初から別のエントランスを設けていたので、特に問題はありませんでした。さらに外階段を最上階まで伸ばし、日照調節のために屋上庭園をこの期間に作っています」

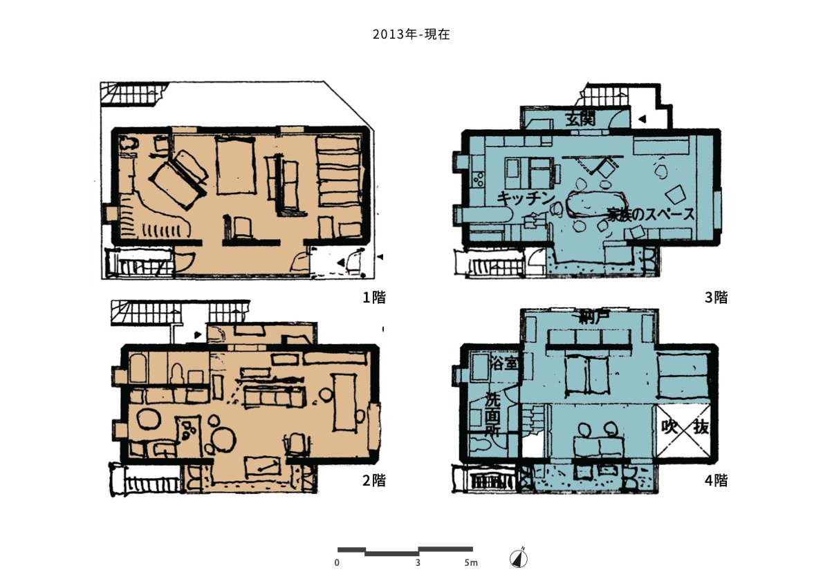
第四期(2013年〜現在)には、結婚をして独立した3男が家族を連れて帰還。室伏さんの新たな二世帯の居住スタイルが始まります。
「僕たち親世帯が1、2階へと移動し、息子家族が3、4階で暮らすようになりました。コロナ禍には一階を僕の事務所に変更し、現在の様子へと至っています」
時代ごとの間取り図を見比べると、建物のかたちはまったく変わっていないのに、壁と床の増減と各階のアクセスをアレンジすることで、一つの家にさまざまな居住スタイルが生まれているのがよくわかります。
家族の距離が近くなるフレキシブルな構造。

この家に生まれ育ち、結婚後に再び自身の家族を連れて戻ってきた室伏次郎さんの3男、暢人さんは、次々に変化する家の様子をどのように捉えていたのかが気になります。
「父が大工さんと相談しながら、何かしら手を加えていることが日常でしたから、僕自身はこれが当然の家の様子だと、特に気にも留めていませんでした。居室やフロアレベルの境界があいまいだったので、個室を持たされてもあまりそこには篭らず、いつも家族と視線が交わせる場所にいたような気がします。自分の部屋に閉じもったのは、兄弟げんかをした時くらいですかね」
この意識は暢人さんの双子の娘さんにも見事に遺伝。世代が次に移り変わっても、同じような家族の関係が続いていると話します。
「ちょうど娘が中学校にあがるタイミングで、『年頃の女の子にはきちんとした個室が必要だろう』と父が4階の2部屋が閉じられるようにしてくれたんです。でも、そこから3年経っても、彼女たちが部屋の扉を閉め切った状態にしているのを見たことがありません。大抵の時間を3階の居間、もしくは2階の両親の部屋で過ごしていますからね」
室伏さん一家の自由な振る舞いを眺めていると、居室をフレキシブルに繋ぐ構造が家族間の親密さを生み出しているようにも思えてきます。
進化し続ける都市のなかで暮らすということ。

半世紀以上前にこの家を建てた時、将来的に可変し続ける様相を室伏さんは明確に予見していたのでしょうか
「当時の僕は、所属していた建築設計事務所を独立したばかりでしたから、資金も潤沢に持ち合わせてはいません。どれほど少なく見積もっても坪20万の建築費がかかる時代に、僕が準備できたのは坪13万という予算しかない。このがらんとした構造は、いわば苦肉の策だったんです。でも、1970年初頭という高度経済成長の真っ只中において、東京の都市化が急速に進み、高速道路が張り巡らされ、より激しい喧騒のなかで人々は暮らすことになる。この環境下で、育ち盛りの子どもたちが心置きなく過ごせる安全な居場所をつくらなければという思いは強かったですね」
最近になって、室伏さんはもしもう一度同じ土地に家を建てるならどうするだろうかと想像しながら、スケッチしたことがあるそうです。
「いろいろなプランを考えてみましたが、やはり同じものを建てるだろうという結論に達しました。一つだけアレンジするとするならば、もう内部を狭くするでしょうね。この家を建てたときには最大限に内部空間を広くしようという意識に囚われて、屋外の活用を意識していませんでしたが、実際に1〜4階をつなぐ外階段を設けたことで、家の性格ががらりと変わりましたから。あと30センチほど家の幅を縮めて外の空間にあいまいな余白ができれば、さらに快適にこの家のなかを行き来できるような気がします」

時代を生き抜く持続可能な家とは。
21世紀に入り、少子高齢化による人口減少が議論される一方で、都市の再開発プロジェクトは止まるところをしらず、東京にも超高層マンションが乱立し続けています。都市から家族を守るための家を建て、家を継承する環境を育んできた室伏さんは、現代の都市と人々の暮らしをどのような思いでみているのでしょうか。
「時代を超える住まいを考えるのは大変難しく、同時にとても大事なことだと思います。基本的に、家とは原始における洞窟と同じで、人に安心感と保護感を与える場所。外界から光と風を適度に取り入れつつ、基本的にはしっかりと内部空間を守る箱であるべき。大きな壁を背にして立つと気持ちが落ち着くように、頑丈な箱のなかにそれぞれが思い思いに安らぐことができるパーソナルスペースが確保でれば、どのように都市の様相が変わろうとも家は生き残り、人も暮らしもそのなかで育つのではないでしょうか」
父の背中を追い、同じ建築家の道を歩んだ暢人さんからは、意外な答えが返ってきました。
「建築家として人の住宅はたくさん設計してきたのに、気づけば自分で家を建てようと思ったことがないんです。あまりにもこの家に慣れ親しんだせいかもしれないし、父には敵わないという思いもあるかもしれません。でも、改めてこの家を将来どう受け継いでいくのかは考え始めています」

親子二世帯が共に暮らすことは稀になり、親の家は基本的に相続したくない、または相続するなら建て替えたいと考える人の方が多い時代のなかで、室伏さんの〈北嶺町の家〉はいかに世代を超え、家族が交流し、関係を育み、未来を気付き上げていくかを教えてくれているような気がします。

1940年東京都生まれ。早稲田大学理工学部建築学科卒業。1963年に坂倉準三建築研究所に入所。71年に独立。75年アルテック建築研究所を阿部勤と共同設立。84年スタジオアルテック設立。神奈川大学工学部名誉教授。主な作品に〈ダイキン オー・ド・シェル蓼科〉〈インマヌエル船橋キリスト教会〉など。
1973年東京都生まれ。多摩美術大学美術学部建築学科卒業。株式会社スタジオアルテックを経て、2009年AMP設立。
大学でジャーナリズムを専攻後、渡仏。帰国後フリーランスとして執筆、編集活動を開始。デザイン分野を中心に、建築、アート、工芸などの取材活動を国内外にて行うほか、企業コンサルティングや、展覧会の企画なども手がける。近年の主な仕事にセシリエ・マンツ個展『TRANSPOSE 発想のめぐり』ディレクションや中川正子著『みずのした』編集・発行、菊地流架個展『impromptu』企画・展示協力など。



